小猪视频官网在线观看视频,小猪视频免费观看视频下载,小猪视频黄色,小猪视频APP无限次数安装IOS

中骏天悦 半层987平出租 标准交付 三面采光

分享
14.71 万元/月
  • 单价:4.9元/㎡/天
  • 物业费:35.0元/㎡/月
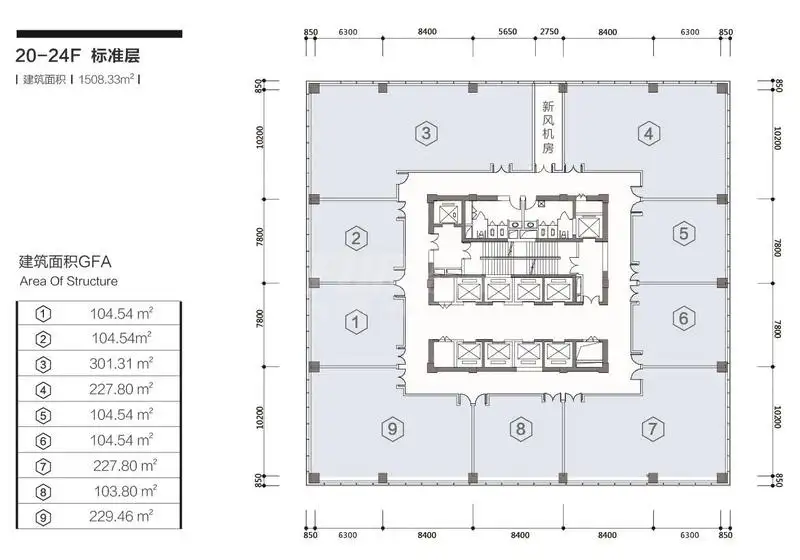
987㎡
建筑面积
100
容纳工位
标准交房
装修
  • 普 陀-真如
  • 11号线-真如、14号线-真如
  • 中骏天悦

房源专属顾问为您服务

徐佳乐Jerry

13052210023
预约看房

公共交通

Public transit

中骏天悦

普 陀真如固川路166弄

网站地图