小猪视频官网在线观看视频,小猪视频免费观看视频下载,小猪视频黄色,小猪视频APP无限次数安装IOS

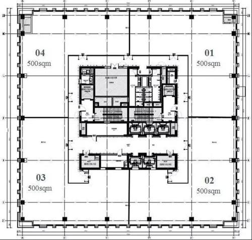
华电大厦1000平,豪华装修,企业总部首选

分享
18.25 万元/月
  • 单价:6.0元/㎡/天
  • 物业费:35.0元/㎡/月
1000㎡
建筑面积
80-120人
容纳工位
带装修家具
装修
  • 浦 东-浦东世博滨江
  • 13号线-世博大道
  • 华电大厦

房源专属顾问为您服务

杨亦晗Cassie

13167276699
预约看房

公共交通

Public transit

华电大厦

浦 东浦东世博滨江国展路839号

网站地图