小猪视频官网在线观看视频,小猪视频免费观看视频下载,小猪视频黄色,小猪视频APP无限次数安装IOS

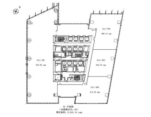
东亚银行大厦792方标准交付,可分割,业主直租

分享
1.18 万元/月
  • 单价:10.5元/㎡/天
  • 物业费:36.5元/㎡/月
37㎡
建筑面积
100人
容纳工位
标准交房
装修
  • 浦 东-陆家嘴
  • 2号线-陆家嘴、14号线-陆家嘴
  • 东亚银行金融大厦

房源专属顾问为您服务

杨亦晗Cassie

13167276699
预约看房

公共交通

Public transit

东亚银行金融大厦

浦 东陆家嘴花园石桥路66号

网站地图