小猪视频官网在线观看视频,小猪视频免费观看视频下载,小猪视频黄色,小猪视频APP无限次数安装IOS

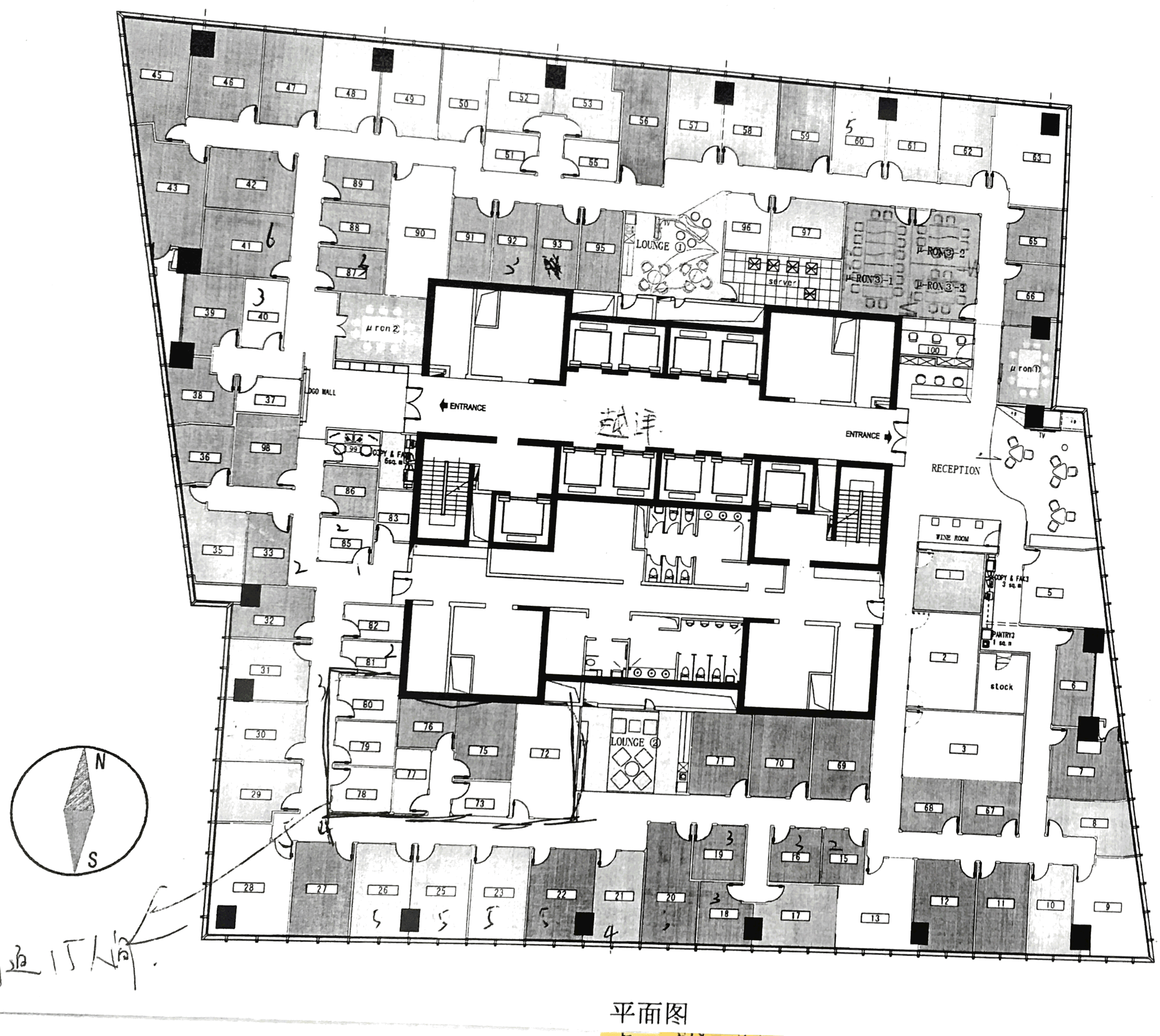
越洋广场2人独立单间,正对会德丰视野极佳

分享
0.66 万元/月
  • 单价:18.0元/㎡/天
  • 物业费:40.0元/㎡/月
12㎡
建筑面积
2人
容纳工位
带装修家具
装修
  • 静 安-静安寺
  • 2号线-静安寺、7号线-静安寺、14号线-静安寺
  • 越洋广场

房源专属顾问为您服务

杨亦晗Cassie

13167276699
预约看房

公共交通

Public transit

越洋广场

静 安静安寺南京西路1601号

网站地图