小猪视频官网在线观看视频,小猪视频免费观看视频下载,小猪视频黄色,小猪视频APP无限次数安装IOS

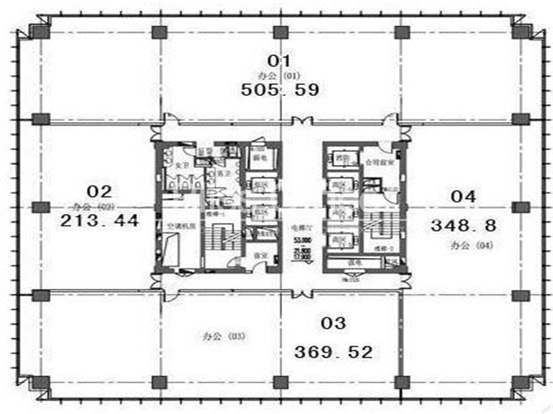
古北核心商圈,东银中心出租700方户型,房型方正

分享
18.74 万元/月
  • 单价:8.8元/㎡/天
  • 物业费:33.0元/㎡/月
700㎡
建筑面积
70-100人
容纳工位
标准交房
装修
  • 长 宁-虹桥古北
  • 10号线-伊犁路
  • 东银中心

房源专属顾问为您服务

杨亦晗Cassie

13167276699
预约看房

公共交通

Public transit

东银中心

长 宁虹桥古北红宝石路500号

网站地图