小猪视频官网在线观看视频,小猪视频免费观看视频下载,小猪视频黄色,小猪视频APP无限次数安装IOS

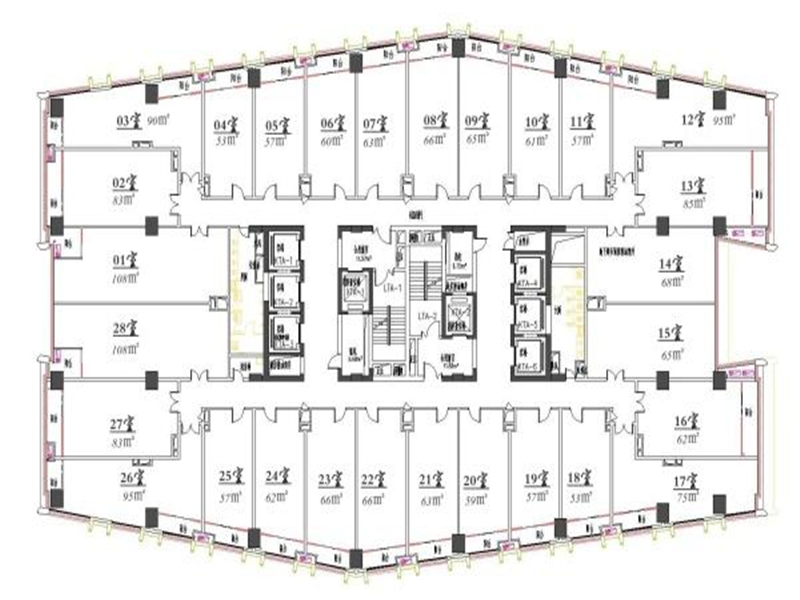
解放日报大厦,600平标准交付,电梯口,可分割多种面积

分享
10.40 万元/月
  • 单价:5.7元/㎡/天
  • 物业费:28.0元/㎡/月
600㎡
建筑面积
50-80人
容纳工位
带装修家具
装修
  • 黄 浦-南京东路
  • 2号线-南京东路、10号线-南京东路
  • 解放日报大厦

房源专属顾问为您服务

徐佳乐Jerry

13052210023
预约看房

公共交通

Public transit

解放日报大厦

黄 浦南京东路汉口路300号

网站地图