小猪视频官网在线观看视频,小猪视频免费观看视频下载,小猪视频黄色,小猪视频APP无限次数安装IOS

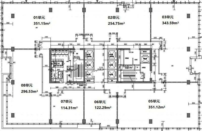
莘庄旭辉中心351方标准交房出租两面采光

分享
4.70 万元/月
  • 单价:4.4元/㎡/天
  • 物业费:28.0元/㎡/月
351㎡
建筑面积
35-45人
容纳工位
标准交房
装修
  • 闵 行 -七莘路
  • 12号线-七莘路
  • 旭辉莘庄中心

房源专属顾问为您服务

江帅军Evan

13052210023
预约看房

公共交通

Public transit

旭辉莘庄中心

闵 行 七莘路秀文路靠近园秀路

网站地图